MegaCAD Metall 2D

MegaCAD Metall 2D ist die perfekt auf die metallverarbeitenden Berufe zugeschnittene Lösung. Diese CAD-Branchenlösung basiert auf einem präzisen Zeichenwerkzeug, ergänzt um komfortable Hilfswerkzeuge. Neben dem Stahlbau-Profilgenerator erleichtern umfangreiche Funktionen die anfallende Zeichenarbeit.

Für diesen Bereich müssen die externen Medien in den Cookie Einstellungen akzeptiert werden.

Cookie Einstellungen bearbeiten
MegaCAD Metall 2D

MegaCAD Metall 2D

Die CAD-Lösung für die metallverarbeitenden Berufe.

MegaCAD Metall 2D ist die perfekt auf den Metallbau zugeschnittene Lösung. Diese CAD-Branchenlösung basiert auf einem präzisen Zeichenwerkzeug, ergänzt um komfortable Hilfswerkzeuge. Neben Funktionen zur automatischen Erstellung von 2D-Stahlprofilen, Toren und Zaunfeldern erleichtern viele weiter Feature die täglich anfallende Zeichenarbeit.

Fertige Zeichnungen können direkt in das Textverarbeitungsprogramm übernommen werden, um ein Angebot oder eine Montageanleitung aussagekräftig zu bebildern.

Fotos, die mit einer Digitalkamera aufgenommen werden, lassen sich einfach in die technische Zeichnung integrieren, um beindruckende Angebote zu erstellen. Der Umstieg zu MegaCAD Metall 3D ist jederzeit möglich, wobei die vertraute Arbeitsweise vollständig erhalten bleibt.

Hard- und Softwareempfehlung für MegaCAD 2024

MegaCAD ist für Windows 10 und Windows 11 geeignet und steht nur in der 64-Bit Version zur Verfügung. Für die Installation und den Einsatz von MegaCAD Einzelplatz-Lizenzen ist eine dauerhafte Online-Verbindung nötig. Bei Ausfall der Internetverbindung kann mit der aktuellen MegaCAD Sitzung bis zu 8 Stunden weitergearbeitet und gespeichert werden. Online-Lizenzen können zur Arbeit ohne Onlineverbindung für 14 Tage ausgeliehen werden. Die Lizenzabfrage kann nicht durch den Cache eines Proxyservers geleitet werden, hierzu muss eine Ausnahme für die URL des Lizenzservers definiert werden.

Wir haben keinen Zugriff auf Ihre Daten.
Wir haben, weder bei der Installation von MegaCAD, noch durch der Verbindungsherstellung mit dem Lizenzserver, Zugriff auf Ihre Daten. Bei der Kommunikation mit dem Lizenzserver handelt es sich um eine einfache Abfrage. Ein weiterer Datenaustausch ist nicht möglich.

Prozessoren, Arbeitsspeicher und Grafikkarten

Basisausstattung Standardausstattung gehobene Ausstattung
Prozessor AMD Ryzen 3 2400G/Intel Core i3-8300 AMD Ryzen 5 2600X/Intel Core i5-8600K AMD Ryzen 7 2700X/Intel Core i7-8700K
Arbeitsspeicher
Festplatte
**
4 GB RAM
1 TB HDD
4 – 8 GB RAM
256 GB SSD / 1 TB HDD
8 – 16 GB RAM
512 GB SSD / 2 TB HDD
Grafikkarte AMD Radeon Pro WX 4100/NVIDIA Quadro P400 AMD Radeon Pro WX 5100/NVIDIA Quadro P60 AMD Radeon Pro WX 7100/NVIDIA Quadro P1000 / P2000

Aufgrund dass sich PC- Komponenten schnell ändern, gelten die vorgeschlagenen Komponenten als Beispiele für Referenzwerte und nicht als gezielte Kaufempfehlung.
*MegaCAD 3D profitiert von 4 / 8 Kern CPUs, da die Berechnung der 2D-Ansichten in 2D-Arbeitsblättern wahlweise gleichzeitig auf mehreren Prozessoren (Kernen) durchgeführt werden kann. ** Hinweis: Auch dann, wenn MegaCAD auf einer anderen Partition installiert werden soll, müssen auf Laufwerk C: mindestens 2 GB Speicherplatz verfügbar sein.

Notebooks

Ältere Notebooks mit sogenannter Onboard-Grafik, also ohne eigenständige Grafikkarte und ohne separaten Grafikspeicher, sind für den Einsatz mit MegaCAD 2024 nicht geeignet. Die Intel HD Graphics 4600 / Intel® Iris™ Pro Grafik 5200 GPUs, die in Intel® Core™ i5- und Core™ i7-Prozessoren ab der vierten Generation integriert sind, bieten eine Leistung, die auch für MegaCAD 2024 ausreicht. Wir raten für den Einsatz von MegaCAD 2024 3D gerade bei Notebooks zum Kauf eines Modells mit einer separaten Grafikkarte mit 2/4 GB dediziertem Speicher (z. B. einer AMD Radeon RX 460 / Radeon RX 580 Notebook oder einer NVIDIA Quadro M620 / Quadro M1200).

OpenGL

MegaCAD 2024 3D nutzt einige der erweiterten OpenGL-Features von Midrange- und High-End-Graphikkarten. Bestimmte (optionale) Funktionen wie Struktur bei Texturen (Bumpmapping), „Reale“ Transparenz und dynamische Schatten lassen sich nur mit Graphiktreibern nutzen, die mindestens den OpenGL 4.3-Standard unterstützen. Diese erweiterten OpenGL-Funktionen sind für die Konstruktion mit MegaCAD 2024 3D nicht zwingend erforderlich.
Wichtig ist generell ein möglichst aktueller Grafikkartentreiber.

Displays (Monitore)

Wir empfehlen (zwei) matte (entspiegelte) 24-/ 27-Zoll-TFT-Displays mit einer Auflösung von 1920 × 1080 Pixeln (16:9) bzw. 1920 × 1200 Pixeln (16:10). Wir sehen 27-Zoll-Monitore mit einer Auflösung von 2560 × 1440 Bildpunkten derzeit als Referenz an. Unter Windows 10/11 kann MegaCAD 2024 auch auf 4K-Panels mit 3840 × 2160 Pixeln eingesetzt werden. Durch die „High DPI Awareness“ erhält der Nutzer eine gestochen scharfe Darstellung. 1280 × 1024 Pixel sind mindestens erforderlich, um MegaCAD 2024 sinnvoll nutzen zu können.

Eingabegeräte

Für den Einsatz von MegaCAD 2024 ist eine 102-Tasten-Tastatur und eine 3-Tasten-(Laser-)Maus mit Scrollrad bzw. ein Trackball erforderlich. Für MegaCAD 2024 3D empfehlen wir zusätzlich den Einsatz eines 3D-Eingabegeräts wie der SpaceMouse Pro von 3Dconnexion bzw. des SpaceController der SpaceControl GmbH.

Windows Remote Desktop

Der Windows Remote Desktop ist für den Einsatz von MegaCAD nicht geeignet.

Stand Dezember 2023.

Datenblatt als PDF herunterladen

Schnittstellen

DWG/DXF (2D) Import und Export (ACAD 12 bis 2024 / Natives Dateiformat 2018)
Modell- und Layoutbereiche
WMF Export und Import von Windows-Meta-File-Daten (Vektorgraphik und Bitmaps)
BMP Export und Import von diversen Bitmapformaten (BMP, PCX, TIFF, JPEG etc.)
HPGL Import und Export im Format 1.0
CDL Export und Import von Geometriedaten als ASCII Datei.

Datenblatt als PDF herunterladen

Weitere MegaCAD Metall 2D Funktionen
mehr

Hier finden Sie eine kleine Auswahl aller Funktionen, die das tägliche Konstruieren mit MegaCAD Metall 2D noch besser machen.

Gitter-, Tor- und Zaunfeldgenerator:
Gerade Rahmen, Rundbögen und Stichbögen mit Angabe der Rahmenstärke und Stabstärke werden automatisch generiert und die Stabaufteilung automatisch berechnet. Freie Rahmenformen für Treppengeländer, Zäune, Balkongeländer etc. stehen zur Wahl.

Stahlbau Profilgenerator:
Verschiede Profiltypen (HEA, HEB I etc.) werden im Querschnitt, in der Seitenansicht bzw. in der Draufsicht dargestellt und mit Informationen für die Stückliste versehen. Der Drehwinkel und die Länge werden dabei vorgegeben oder konstruktiv ermittelt.

MegaCADemy

Vorteile auf einen Blick
mehr
  • Einfache Bedienung zur Konstruktion von Gittern und Zäunen
  • Direkte Änderungen wie Kopieren, Rotieren, Spiegeln, Strecken etc.
  • Integrierte Teiledatenbanken beschleunigen Planerstellung
  • Maßgenaue Zeichnungen für hohe Fertigungsqualität
  • Metall-Werkzeugkasten bereits enthalten
  • Ausgabe von TIFF-, JPEG- und PDF-Daten in hoher Auflösung
  • Automatische Stücklisten für sichere Kalkulation
  • Exakte Angebotszeichnungen verbessern Auftragschancen
Das Konstruktionswerkzeug für Praktiker
mehr

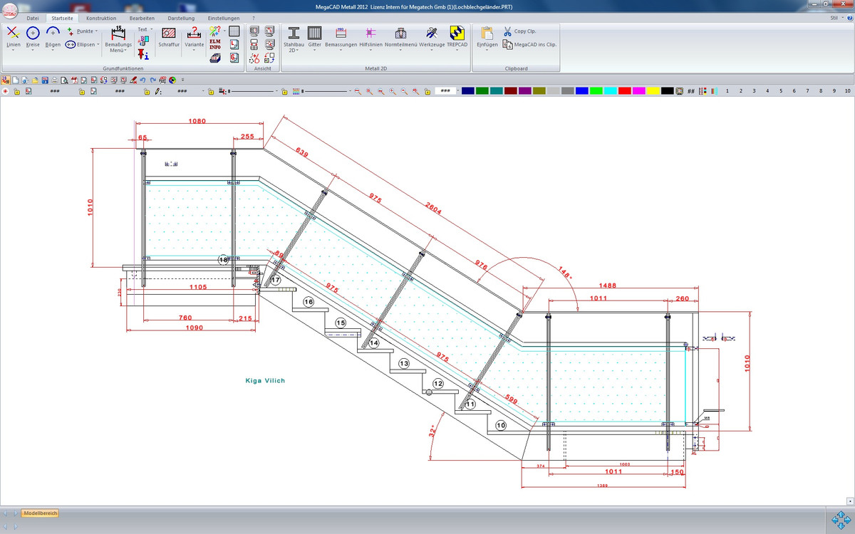
Treppen:
Mit MegaCAD Metall lassen sich frei gestaltete Treppen konstruieren.

Präzise technische Illustrationen:
Präzise technische Illustrationen, einfache Skizzen, Produktspezifikationen, Präsentationen, Schemazeichnungen, Pläne oder Infografiken erstellen Sie schnell und problemlos.

Stücklisten:
Die in der Zeichnung enthaltenen Bauteilinformationen können per Knopfdruck als Stückliste in die Zeichnung eingefügt und zur Auswertung an MS Excel übergeben werden. Grafische Anzeige von Profilquerschnitten und Gehrungswinkeln.

Weitere MegaCAD Metall 2D Funktionen
Stahlbau-Profilgenerator

Verschiede Profiltypen (HEA, HEB, I etc.) werden im Querschnitt, in der Seitenansicht bzw. in der Draufsicht dargestellt und mit Informationen für die Stückliste versehen. Der Drehwinkel und die Länge werden dabei vorgegeben oder konstruktiv ermittelt.

Stahlplatten

Automatische Auswahl von IH-Platten zur Erstellung einer biegesteifen Verbindung mit hochfesten vorgespannten Schrauben.

Bereit für CADENAS

Mit der Integration von PARTS4CAD (die Sie zusätzlich bei CADENAS erwerben können) haben Sie Zugriff auf Normteile und Normalien von allen namenhaften Herstellern.
Diese können dann über ein eigenes Menü direkt in bestehende Zeichnungen importiert werden.

Teiledatenbank der Firmen Triebenbacher und KDM

Zierstäbe, Handläufe, Klemmsysteme, Schriftzüge, Torantrieb, und vieles mehr

Stücklisten

Die in der Zeichnung enthaltenen Bauteilinformationen können per Knopfdruck als Stückliste in die Zeichnung eingefügt werden. Grafische Anzeige von Profilquerschnitten und Gehrungswinkeln.

Werkzeugkasten

Der Werkzeugkasten enthält Werkzeuge, um Oberflächenzeichen wie Schweißsymbole und Positionsnummern zu erstellen, ferner eine Funktion, um einzelne Elemente (Linien, Bögen etc.) zu einer Baugruppe zusammenzufassen und mit (Stücklisten-) Informationen zu versehen.

Photolabor

Fügen Sie ein beliebiges Bild (BMP, JPEG, PNG oder TIFF) maßstabsgetreu in eine MegaCAD-Zeichnung ein. Ebenso kann die gesamte Zeichnung als Bild in den genannten Formaten gespeichert werden.

Excelkopplung

Übergeben Sie alle in der Zeichnung enthaltenen (Stücklisten-)Informationen direkt an Microsoft Excel 97, 2000 oder XP.

Präzise technische Illustrationen

Präzise technische Illustrationen, einfache Skizzen, Produktspezifikationen, Präsentationen, Schemazeichnungen, Pläne oder Infografiken erstellen Sie schnell und problemlos.

Garantiert leichter Einstieg

MegaCAD Metall garantiert den leichten Einstieg in das professionelle Zeichnen zu einem hervorragenden Preis- Leistungsverhältnis. In kurzer Zeit wissen Sie mit der Zeichensoftware umzugehen. Und dies ohne Zeitraubende und umfangreiche Schulungen.

Hilfe und schnelles Erlernen

Für das schnelle Erlernen sind die wichtigsten Informationen zu den jeweiligen Funktionen in der integrierten Hilfe anschaulich und detailliert beschrieben. Mit der F1-Taste haben Sie jederzeit darauf Zugriff.

Freies Gitter

Individuelle Anfertigung von Gittern

Bohrbilder

Automatisches Erzeugen von unterschiedlichen Bohrbildern

Lochblech

Automatisch Lochbleche erzeugen

Treppen

Mit MegaCAD Metall lassen sich frei gestaltete Treppen konstruieren.

Werkstückkanten erstellen

Symbole zur Darstellung von Kantenzuständen (gratig, scharfkantig, gratfrei).

Bohrungen

Darstellung von Bohrungen und Gewindebohrungen, wahlweise mit Verdeckungsflächen

Paßfedern/Nuten in Wellen erstellen

Generator für Paßfedern und Paßfedernuten in Wellen.

Symbole für Oberflächentolerierung

Generator für Oberflächenzeichen für spanende und spanlose Bearbeitung für unterschiedliche Fertigungsverfahren

Postionierungssymbole erzeugen
  • Generator für Positionsnummern
  • Änderungen an der Stückliste werden automatisch übernommen
Schnittverlauf erzeugen

Werkzeug zur DIN-gerechten Darstellung von Schnittverläufen.

Schweißnahtbemaßung

Funktion zur Bemaßung der Lage von Schweiß- und Lötnähten mit Symbolen für Bezugsseite und Gegenseite.

Toleranztabellen

Automatische Erzeugung einer Abmaßtabelle aus sämtlichen in der Zeichnung verwendeten Toleranzen.

Gitter mit Zierstäben

Die Gitterstäbe eines automatisch erstellten Tores können ganz oder teilweise durch Zierstäbe aus der KDM oder Triebenbacher Datenbank ersetzt werden

Tel. +49 40 507973-0
E-Mail: info@megacad.de

Sie haben Fragen zu unseren Produkten?
Rufen Sie uns an oder senden Sie uns eine Nachricht.
Wir helfen Ihnen gerne weiter.

An_der_Alster63

Firmensitz

MegaCAD Deutschland GmbH
An der Alster 63
20099 Hamburg

Tel.: +49 40 855 394-00
Fax: +49 40 507 973-20
E-Mail: info@megacad.de

Anfahrt

Niederlassung

MegaCAD Deutschland GmbH
Steinkamp 13
26125 Oldenburg

Tel.: +49 441 933 71-0
Fax: +49 441 933 71-17
E-Mail: info@megacad.de

Anfahrt

Wir haben Vertriebspartner und
Händler in ganz Europa.

Gerne sind wir Ihnen behilflich den richtigen
Ansprechpartner zu finden.